Imagine 64

Pipera vanzare vila

ID: 0006 Bucuresti, Pipera 41
287.500€
Descriere
Pipera ansamblul rezidential pe marginea lacului Pipera – vanzare vila individuala. 

Va prezentam spre vanzare o superba proprietate aflata pe malul lacului Pipera in ansamblul rezidential in apropiere de rondul OMV - Pipera la doar cateva sute de metri de HUB-ul de cladiri office din zona Pipera.

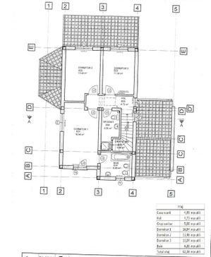
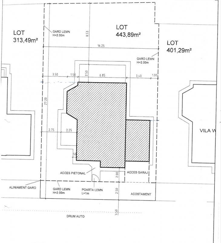
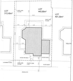
Vila are o suprafata construita de 225 mp este dispusa pe parter si etaj fiind amplasata pe o suprafata de 401 mp.  

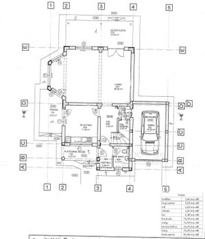
Parterul este compus dintr-un living generos cu iesire pe terasa inchisa in care se poate sta in perioada rece, bucatarie inchisa cu iesire pe terasa unde se poate lua masa, debara si baie. De asemenea la parter exista un garaj de aproximativ 17 mp cu acces direct in holul intermediar. 

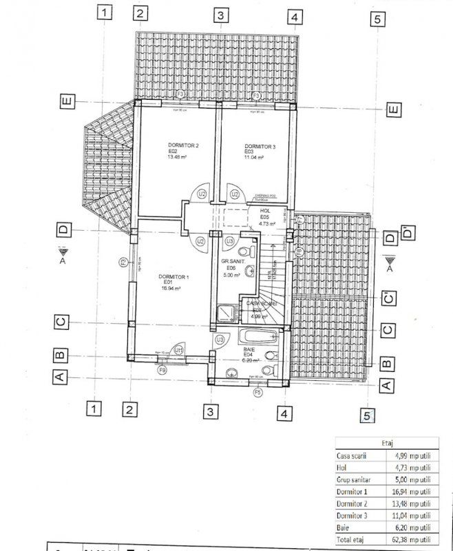
Etajul este compus din trei dormitoare si doua bai. Dormitorul matrimonial dispune de zona dressing si baie proprie.



In curtea proprietatii gasim amenajata o piscina descoperita în suprafata de 28 mp, cu o adancime constanta de 1.4 m, cu zona de sezlog . De asemenea restul de curte este amenajata cu gazon, plante ornamentale, zona de barbeque si spatiu de depozitare. 

In imediata vecinatate se afla un Mega Image, iar la 300 – 500 metri este un Penny Market si un magazin Lidl. 

Vila face parte dintr-un complex rezidential din zona de Nord a capitalei, complex rezidential racordat la toate utilitatile orasului Voluntari, dispunand de paza permanenta, loc de joaca pentru copii, magazine in proximitate, plus acces facil catre Bucuresti sau centura de Nord a capitalei. 

Aceasta proprietate va poate oferi confortul si intimitatea de care aveti nevoie.

Caracteristici
  • ID:0006
  • Nr. camere:4
  • Nr. dormitoare:1
  • S. utila:158.00 mp
  • S. construita:225.00 mp
  • S. teren:401.00 mp
  • Nr. bucatarii:1
  • Nr. bai:1
  • Nr. parcari:3
  • Nr. garaje:1
  • Nr. fronturi:1
  • An constructie:2005
  • Structura rezistenta:Beton
  • Regim inaltime:P+1
  • Orientare:Nord-Est
Tur virtual
Specificatii
Curent
Apa
Canalizare
Gaz
Curent trifazic
Telefon
Acces internet
Utilitati in zona
Centrala proprie
Aer conditionat
Izolatie Exterior
Var
Faianta
Parchet
Gresie
Ferestre PVC
Usa intrare Metal
Dependinte
Bucatarie Mobilata
Bucatarie Utilata
Apometre
Contor gaz
Partial mobilat
Curte comuna
Localizare
Office olimob
Esti interesat de aceasta proprietate ?
Proprietati similare
TOP 0% comision Rep. exclusiva De vanzare Imagine 939
Vanzare vila constructie nou Tunari, finisaje premium
Tunari, Central 275.000€
5 camere 3 bai 136mp
De vanzare Imagine 729
Casă modernă cu 4 camere de vânzare în Tunari, lângă Otopeni – Mutare imediată!
Tunari, Central 275.000€
4 camere 4 bai 117.20mp