













Descoperă rafinamentul și confortul unui apartament modern cu 4 camere situat în exclusivistul complex rezidențial , Pipera (OMV Rond – București / Ilfov). O locuință cu personalitate, creată pentru cei care apreciază designul elegant, spațiile generoase și proximitatea față de tot ce contează.
🏡 Detalii cheie:
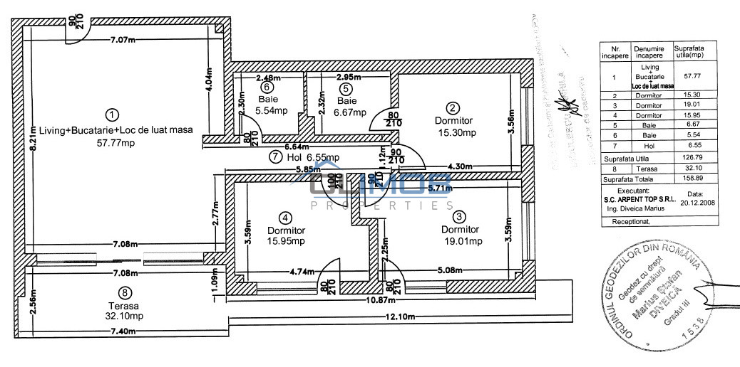
Suprafață totală: 159 mp
Compartimentare: Living luminos cu zonă de dining, 3 dormitoare spațioase, 2 băi moderne, bucătărie complet echipată
Confort: Finisaje premium, mobilă de calitate, atmosferă caldă datorită șemineului pe gaz
Spațiu exterior: 2 terase private – perfecte pentru relaxare, mic dejun în aer liber sau seri cu prietenii
🔥 Ce face acest apartament special:
💎 Livingul generos cu zonă de dining este ideal pentru familie și prieteni 🔥 Șemineul pe gaz creează o atmosferă caldă, elegantă și relaxantă 🍳 Bucătăria modernă, complet echipată, combină funcționalitatea cu stilul 🛌 Dormitoarele spațioase oferă intimitate și liniște 🚿 Băile transformă rutina zilnică într-un moment de relaxare 🌿 Terasa spațioasa îți oferă o oază de relaxare si zona verde chiar acasă
📍 Locație de top – Pipera / OMV Rond:
Situat într-una dintre cele mai căutate zone din nordul Bucureștiului, acest apartament îți oferă un stil de viață urban, echilibrat și sigur: 👉 Acces rapid către școli și grădinițe internaționale (American School, Mark Twain, Olga Gudynn) 👉 Aproape de mall-uri, restaurante premium și centre de business (Promenada Mall, Băneasa Shopping City, Pipera Business District) 👉 Zonă liniștită, verde și sigură, ideală pentru familii și profesioniști activi 👉 Conectivitate excelentă către centrul Capitalei și autostrada A3
💡 De ce să alegi acest apartament:
Este mai mult decât o simplă locuință – este un spațiu de viață elegant, luminos și perfect poziționat, ideal pentru cei care caută echilibrul între confort, lux și accesibilitate. Fie că îți dorești o casă de familie, fie un apartament premium în Pipera, Mediteraneo oferă combinația ideală între design modern și proximitate urbană.
📞 Programează o vizionare și descoperă cum arată cu adevărat viața modernă în Pipera – elegantă, relaxată și conectată la tot ce contează. 👉 Apartament cu 4 camere și șemineu de vânzare – București / Ilfov.