



















Casă modernă cu 4 camere de vânzare în Tunari, lângă Otopeni – Mutare imediată!
Descoperă această locuință exclusivă dintr-un ansamblul rezidențial gândită pentru un stil de viață modern și confort maxim. Ideală pentru familii ce își doresc un ambient plin de rafinament și facilități premium, cu acces rapid la principalele puncte de interes din zonă.
Dotări Premium pentru un Confort Desăvârșit:
Gazon cu irigare automată: Control complet prin telefon.
Terasă acoperită: Mobilată și decorată cu mobilier Mobexpert, perfectă pentru momente de relaxare.
Zona de barbeque și căsuță de depozitare Mobexpert: Spațiu ideal pentru petreceri în aer liber.
Sistem de irigare pentru spațiile verzi și apă curentă trasă în curte.
Plase de insecte și rulouri exterioare: Confort și protecție maximă.
4 aparate de aer condiționat: Pentru o temperatură optimă în orice sezon.
Mobilată și utilată complet: Totul este nou, impecabil și gata de folosință.
Compartimentare Inteligentă & Spații Generoase:
Parter:
Hol spațios și dressing.
Grup sanitar de serviciu.
Bucătărie închisă, cu debara de depozitare.
Living generos cu acces direct pe terasă.
Etaj:
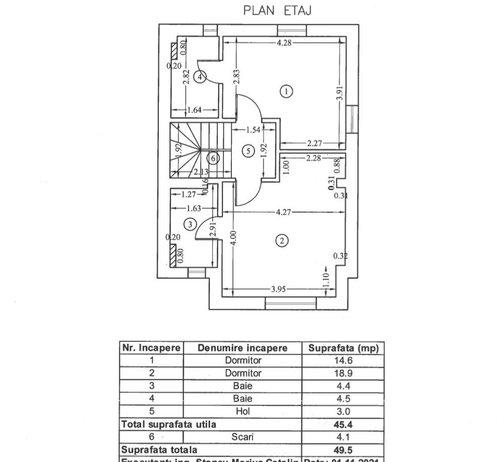
2 dormitoare (18,9 mp și 13,7 mp).
2 băi (una echipată cu cadă și cealaltă cu duș și rigolă).
Mansardă:
Dormitor matrimonial (24,9 mp) cu baie proprie (duș și geam).
Două dressinguri și spațiu suplimentar pentru depozitare.
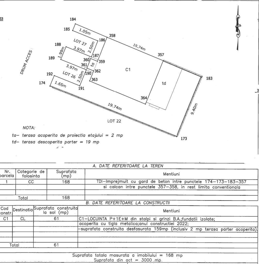
📏 Suprafață construită: 168 mp📐 Suprafață utilă: 119,5 mp🍽 Bucătărie: 10 mp | Living: 29,1 mp | Băi: între 2,1 și 5 mp
Locuința este liberă și pregătită pentru mutare imediată!
Puncte de Interes & Acces Facil:
Aeroportul Internațional Henri Coandă (Otopeni): la aproximativ 15 minute cu mașina.
Școli și grădinițe: situate la doar 5 minute, ideale pentru familiile cu copii.
Centre comerciale și supermarketuri: facilități moderne de cumpărături în 5-10 minute.
Spitale și clinici: servicii medicale accesibile în aproximativ 8 minute.
Acces rapid la DN1: legătură excelentă către București și alte zone din Ilfov, la 10 minute.
Nu rata această oportunitate unică de a locui într-o casă modernă, elegantă și complet utilată, cu tot confortul de care ai nevoie! Programează o vizionare acum și fă primul pas spre casa visurilor tale!
📞 Contactează-ne pentru mai multe detalii!